- 613-293-1775
- 613-446-1677
- steve@brunetteam.ca
3 bedroom Bungalow on private wooded lot
2660 Dubois St.
Rockland
ON
K4K 1K7
$764,900








































Property Description
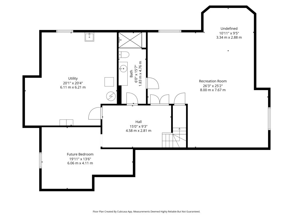
Welcome to this beautiful 3-bedroom bungalow nestled in a desirable executive enclave just minutes from Rockland. Perfectly positioned on over three-quarters of an acre, this quality-built home offers an exceptional blend of privacy, comfort, and timeless craftsmanship. Step inside to discover a bright, open layout featuring 9-foot ceilings and elegant hardwood and ceramic flooring throughout the main living areas. The spacious kitchen and inviting living room create a warm and welcoming atmosphere, highlighted by large windows that fill the home with natural light and offer peaceful views of the private, wooded backyard. The formal dining room, currently used as an office, provides flexibility to suit your lifestyle. The lower level expands your living space with a generous family room and a modern three-piece bathroom ideal for movie nights, entertaining guests, or relaxing with family. Step outside to a stunning two-tier deck complete with a gazebo area, perfect for outdoor dining or enjoying quiet evenings surrounded by nature.Built with exceptional attention to detail, this home features 2×8 framing with an impressive R3000 insulation rating, insulated interior walls with solid-core doors for superior soundproofing, and a 10-foot foundation offering high basement ceilings. Recent updates include roof shingles replaced in 2021 with a 50-year lifetime rating and covered eavestroughs. A 200-amp electrical service with a GenerLink adapter adds peace of mind and convenience.If you’ve been searching for a home that combines quality construction, serene surroundings, and everyday comfort, look no further-this property has it all. Book your private showing today and experience the lifestyle this exceptional home has to offer.
Virtual Tour
Property Information
Type:
Rural Residential
Lot Dimensions:
114.14 FT x 243.31 Ft Pie shape 0.88 Acres
Water:
Drill Well
Sewage Type:
Septic System
Structure:
Type:
Detached
Bedrooms:
3
Bathrooms:
2
Basement:
Partially Finish
Style:
Bungalow
Square Footage:
1,598
Age:
2006
Flooring:
Hardwood, Ceramic, Carpet
Heating:
Forced Air – Propane
Exterior:
Brick, vinyl
Garage:
Single
Parking:
8+
Other:
Taxes:
5,365/ 2025
Hydro:
$253.00 / Month average
Heating:
$237.00 / Month average
Notes:
n/a